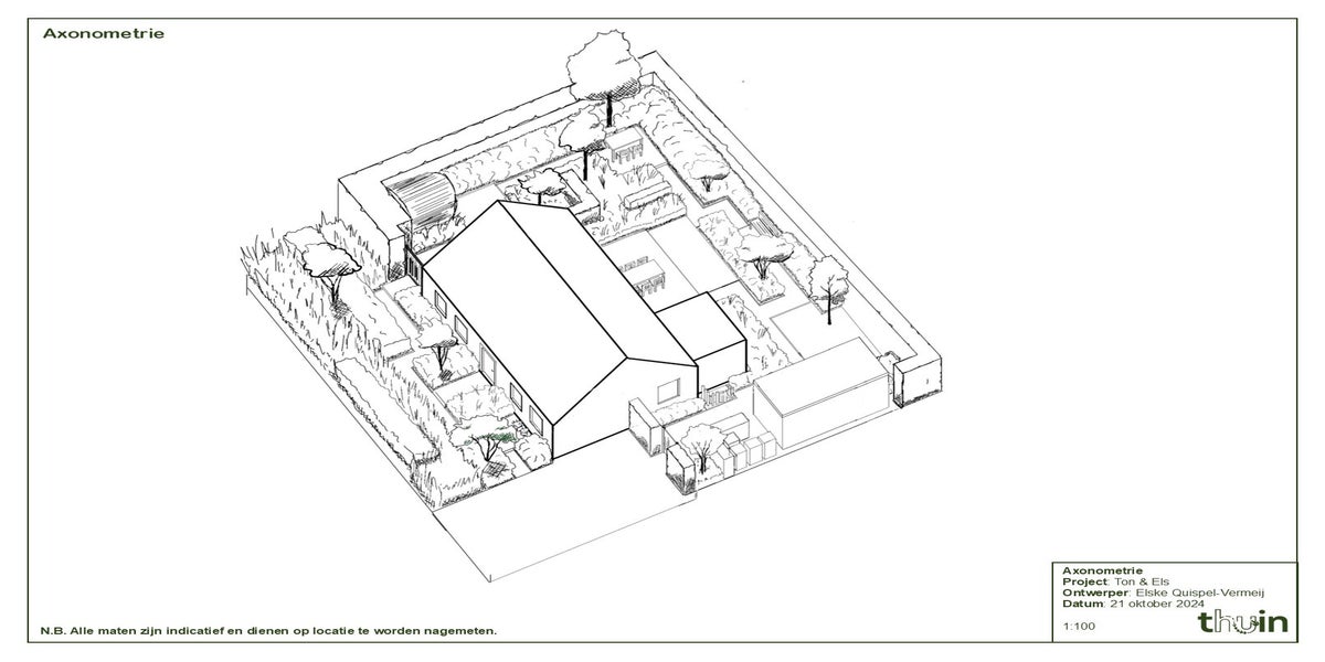
Tuinontwerp vrijstaande woning | Concept 'Luchtige spanning'

Of ik interesse heb om voor een nieuwe woning in Melissant een tuinontwerp te maken? Maar natuurlijk! Na een kennismakingsgesprek met de aanstaande bewoners ben ik enthousiast aan de slag gegaan. De wens? Een avontuurlijke, frisse en verrassende tuin te ontwerpen, waar plek is voor een grasveld, borders, schuur met veranda, een sauna, zitjes in de zon en in de schaduw en minimaal 3 parkeerplekken.

Na een grondige analyse vind ik dat het voor deze tuin belangrijk is om te werken met verschillende zones, bijvoorbeeld door de juiste plaatsing van bomen en heesters. Dit kan tevens helpen om inkijk te blokkeren en de ruimtelijke beleving te versterken. Ook is het een idee om een pad rondom het huis aan te leggen om zo alle stukken van de tuin te benutten en te beleven.

Als thema heb ik gekozen voor de Moderne Engelse tuin met veel afwisseling, fris groen en een luchtig lijnenspel. Overal waar je zit wordt je omgeving door een groene, luchtige frisse sfeer en een vleugje spanning. De tuin is verrassend en heeft verschillende hoekjes en daagt je uit om op ontdekking te gaan door de tuin. Voor het ruimtelijk concept ben ik uitgegaan van een open sfeer aan de voorzijde van het huis en meer spanning aan de achterzijde.